OFFICIAL BUCKEYE PLANS WEBSITE. Material Packages and Installation Services
A Custom Modern Farmhouse
The Ashwood Farmhouse by Buckeye Plans sets a new standard for modern home design.
FARMHOUSE PLANS
Howie
10/5/20242 min read


Custom-Designed Home by Buckeye Plans: A Tranquil Retreat
Nestled on over an acre in Montgomery Trace, this stunning custom home at 4506 Honea Egypt offers an elegant blend of craftsmanship and luxury. Designed by Buckeye Plans, it features wide oak flooring, high ceilings, custom cabinets, and designer fixtures throughout. The kitchen includes professional-grade appliances, a waterfall island, and ample storage. The primary suite serves as a private oasis, while the upstairs flex space offers versatility. Every inch of this home has been carefully crafted, ensuring comfort and style in a peaceful setting.
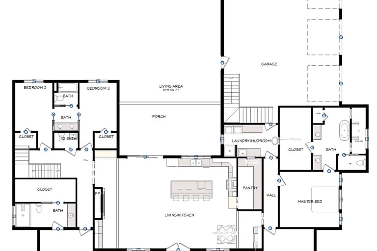
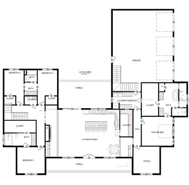
Floor Plan and Layout
The Ashwood Farmhouse spans a thoughtfully designed layout, offering:
• Four bedrooms for privacy and comfort
• One office, ideal for remote work or personal projects
• Double bonus rooms above the garage and bedrooms, perfect for guests, entertainment, or storage
• A vaulted open-concept living and kitchen area, designed to foster togetherness
Unique Features and Highlights
• Vaulted living/kitchen area with high ceilings and an open layout, creating a spacious feel
• Attached garage for convenience and extra storage
• Porch areas to enjoy the serene surroundings of Montgomery, Texas
Download The Plans at BuckeyePlans.com










