Carolina Cypress v2
New Split Ranch 1756 SqFt
Free
Carolina Cypress V2 – Buckeye Split Ranch Barndominium
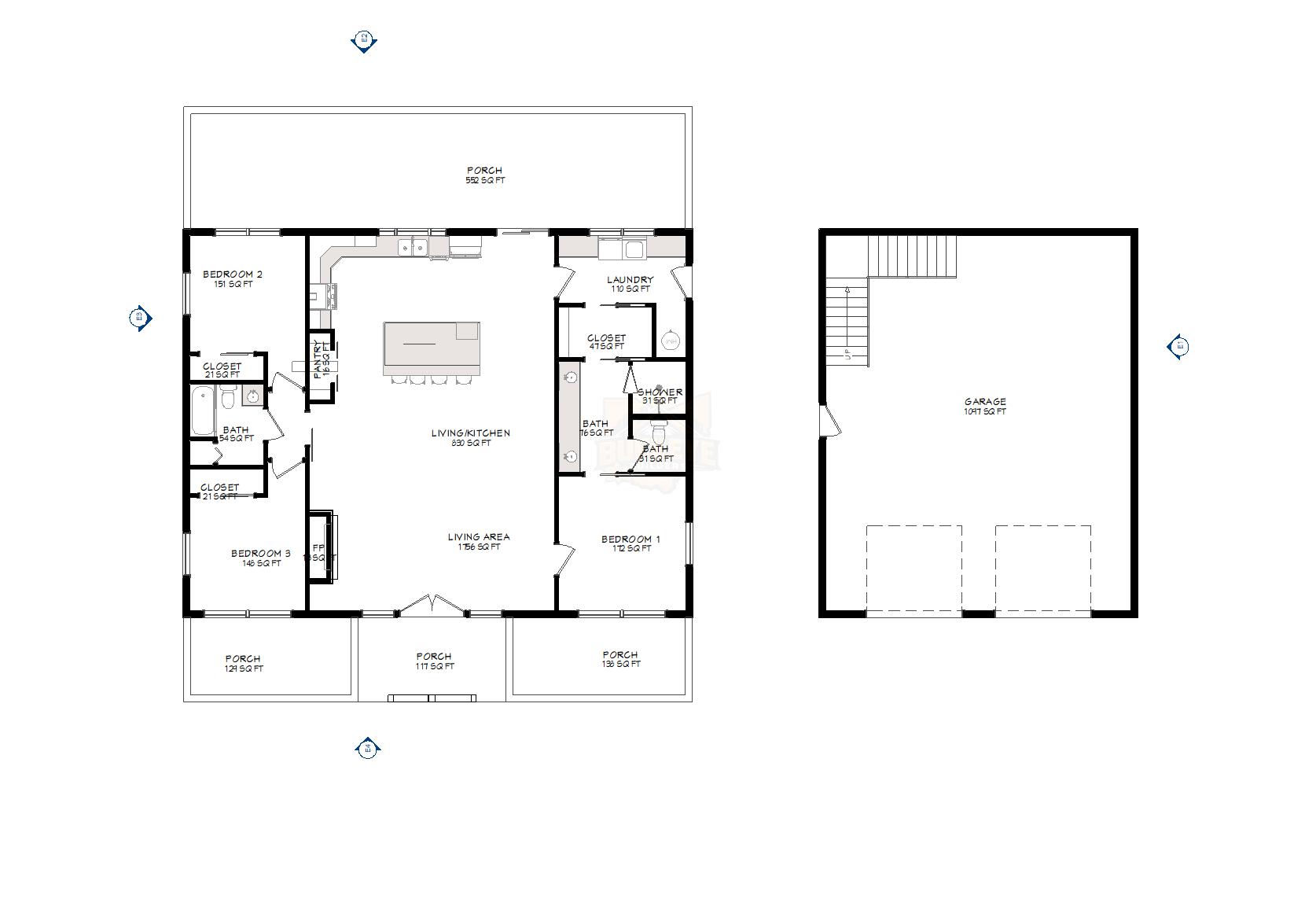
The Carolina Cypress V2 is a refined take on the Buckeye Split Ranch layout, designed to deliver a clean, efficient footprint with strong curb appeal and everyday functionality.
This design features a classic barndominium farmhouse exterior paired with a highly practical interior layout. The open-concept living, kitchen, and dining area sits at the center of the home, creating a spacious gathering area that anchors the entire design.
The Buckeye Split Ranch layout separates the primary suite from the additional bedrooms, giving homeowners privacy while maintaining a single-level, easy-to-navigate floor plan. Bedrooms and shared spaces are thoughtfully positioned for both comfort and efficiency.
A large covered porch spans the front of the home, providing outdoor living space and enhancing the overall look of the elevation.
The detached garage/shop offers flexibility for vehicles, storage, or workspace, making this design ideal for homeowners who want both a functional home and usable shop space.
Key Features:
• Buckeye Split Ranch style layout
• Open-concept living, kitchen, and dining area
• Private primary suite separate from additional bedrooms
• Multiple bedrooms with shared bath access
• Large covered front porch (approx. 550 sq ft)
Cypressv2garage
• Detached garage/shop with bonus space potential
Cypressv2garage
• Clean barndominium exterior with simple, buildable design
Layout Overview:
• Approx. 1,750+ sq ft living area
Cypressv2garage
• Large central living/kitchen space (~380 sq ft)
Cypressv2garage
• Dedicated laundry and storage areas
• Functional bedroom layout with closets and shared baths
• Detached garage around 1,000 sq ft with room for expansion
Cypressv2garage
What’s Included in the PDF Download:
• Exterior elevations
• Foundation plan
• Floor plan with full dimensions


