Carolina Cypress v3
New Split Ranch 40x60
Free
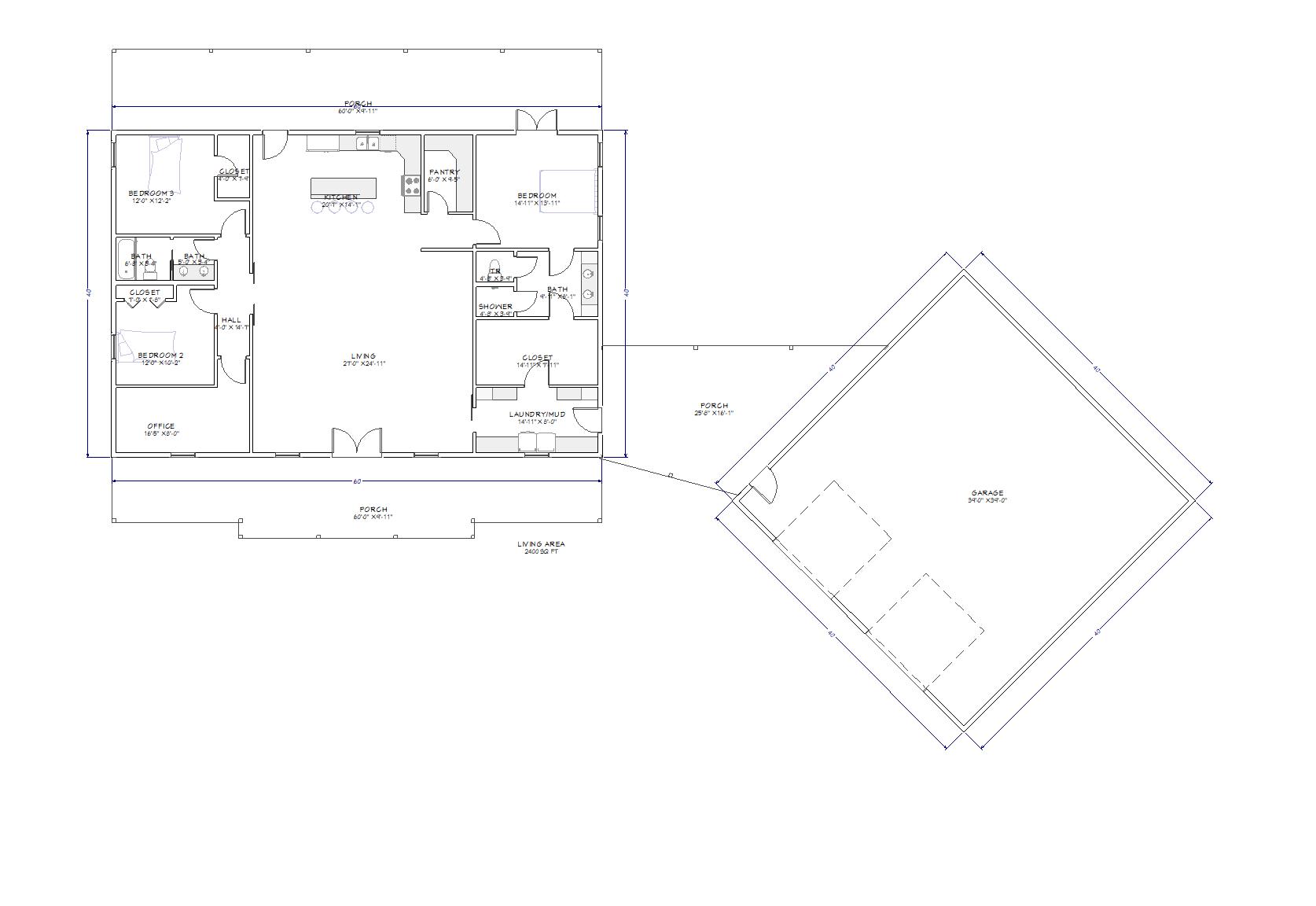
The Carolina Cypress V3 features a signature Buckeye Split Ranch layout, designed for privacy, functionality, and clean open living. This modern barndominium farmhouse blends a wide, welcoming exterior with a highly efficient interior layout that works for everyday living.
The heart of the home is a large open-concept living area that connects the kitchen, dining, and living room—creating a central space for gathering, entertaining, and family life.
The Split Ranch design separates the primary suite from the additional bedrooms, giving homeowners privacy while keeping everything on a single level. On the opposite side of the home, you’ll find secondary bedrooms and a dedicated office space—perfect for work-from-home setups or flexible use.
A full-width covered porch enhances the front elevation and creates a seamless indoor-outdoor connection.
Paired with a detached garage/shop, this layout offers maximum flexibility for storage, vehicles, or workspace without compromising the clean residential look of the home.
Key Features:
• Buckeye Split Ranch style layout
• Open-concept kitchen, dining, and living area
• Private primary suite separate from other bedrooms
• Dedicated office space
• Large covered front porch
• Detached garage/shop structure
• Modern barndominium exterior with timber accents
What’s Included in the PDF Download:
• Exterior elevations
• Foundation plan
• Floor plan with full dimensions


