OFFICIAL BUCKEYE PLANS WEBSITE. Material Packages and Installation Services
Design Plan vs Engineered Plan
Know The Difference Before Diving Into Your Building Journey
At Buckeye Plans, we offer two distinct types of plans to fit different stages of your home-building journey — Design Plans and Engineered Plans. Understanding the difference ensures your project moves forward smoothly and efficiently.
🖊️ Design Plan
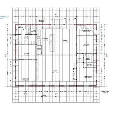
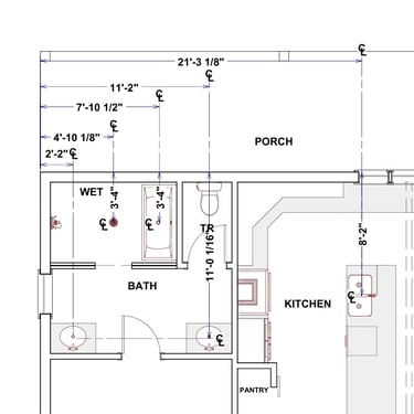
A Design Plan (see samples below) provides the complete architectural layout and visual concept of your home.
It includes everything needed to understand the flow, dimensions, and aesthetics of your design — perfect for visualization, pricing, and early-stage planning.
Includes:
Floor plan with room dimensions and labels
Elevations (front, rear, left, right)
Roof layout and framing plan
Electrical and plumbing layouts
Door, window, and cabinet schedules
3D renderings (if included)
Purpose:
Design Plans are ideal for homeowners, builders, or investors who need a clear layout for bidding, budgeting, or material planning.
They are not construction-ready blueprints and should be reviewed by a licensed engineer before permitting or building.
Order Your Design Plan Here





Engineered Plan
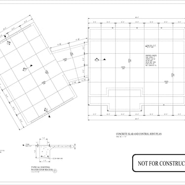
An Engineered Plan (See samples below) takes your design to the next level by adding the structural calculations and professional review required for permitting and code compliance. Typically starts at $5,000 and up.
Includes:
All elements of the Design Plan
Sealed drawings by a licensed engineer (state-specific)
Structural load analysis (foundation, framing, roof, wind, snow, and seismic where applicable)
Site-specific adjustments as required by your local building department
Purpose:
Engineered Plans are required by most counties and states for official permitting and construction approval.
They ensure your home meets safety, code, and environmental standards for your build location.





How It Works
Start with a Design Plan — this is the creative phase where you finalize your layout, style, and options.
Once finalized, upgrade to an Engineered Plan for your specific county or state.
We coordinate with our engineering partners to deliver your sealed plans, ready for permitting and construction.
Custom House Plans
Specializing in barndominium and modern farmhouse floor plans.
contact
Design With Us
Contact Us Here
Email: Owner@BuckeyePlans.com
304-975-1007
© 2024. All rights reserved.


