
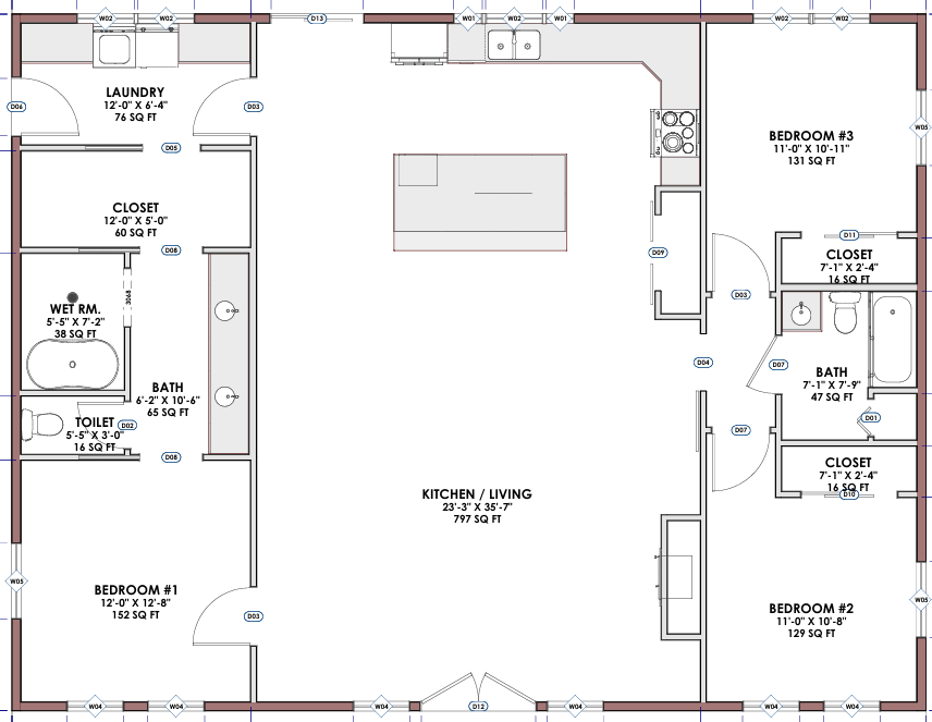
The Rustic Ridge v8 Detailed Design Plans
1,756 sqft 3 Bedroom
$1449.00
The Rustic Ridge v8 Quick Specs:
- 1,756sqft Living Area
- 3 Bedrooms
- 2 Bathrooms
- Front and Rear Porch
- 10' Ceiling
- 9' Porch Ceiling
Overall approx. 36'x48'
Estimated Build Cost - $334 - $400k
Shell Build Estimated Cost - $87k - $114k
This download is for a full design plan set which includes the following:
Elevations
Foundation Dimensions
Roof Layout
Framing Layout and Dimensions
Window and Door Schedules
General Notes and Details
Electrical Locations
Plumbing Locations
Modifications can be made to this plan or we can create a custom plan.
Engineering is available in 47 States
Material Packages and Installation available in most US states. Contact us to verify.


